Charmig sekelskiftestvåa med två kakelugnar med goda lokalintäkter

Charmig sekelskiftestvåa belägen i förening med goda lokalintäkter

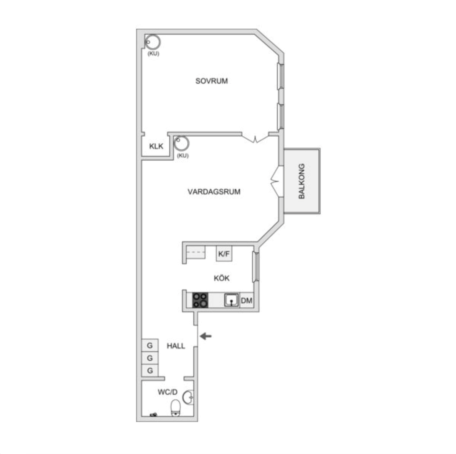
Varmt välkommen till denna charmiga sekelskiftestvåa med tidstypiska detaljer såsom generös takhöjd, eldstad, trägolv samt takrosetter och stuckatur. Tre stora fönster släpper in ett fint ljusflöde genom bostaden. Vardagsrummet är smart planerat med eldstaden placerad i hörnet och plats för både soffgrupp och matbord. Köket är renoverat och fullt utrustat med goda arbetsytor. Sovrummet har plats för dubbelsäng och förvaring. Lägenheten erbjuder dessutom bra förvaringsmöjligheter i form av en rymlig klädkammare och garderober samt ett helkaklat badrum med tvättmaskin.

Brf Bonden Större 29 är en äkta bostadsrättsförening som bildades 1999. Föreningen består av 21 lägenheter, varav 20 bostadsrätter och 1 hyresrätt, samt en lokal med mycket goda med intäkter om ca 1 240 000kr/år. Fastigheten förvärvades 2015 och föreningen äger marken. Denna bostad är en av hyresrätterna och kommer vid upplåtelse att ytterligare stärka föreningens ekonomi.

Läget mitt på fantastiska Skånegatan är svårslaget, nära både grönområden och Södermalms bästa restauranger, caféer och butiker. Skånegatan är permanent gågata vilket förstärker den lummiga och vibrerande atmosfären utanför dörren.

Skånegatan 57A

Antal rum
2 rum
Boarea
56 kvm
Område
Södermalm
Bostadstyp
Lägenhet
Månadsavgift
2 707 kr/mån
Nils Löfström Ansvarig mäklare [email protected] 076-311 02 36
Henrik Duong Assisterande mäklare [email protected] 076-396 57 55

Visning

Kontakta ansvarig mäklare för bokning av personlig visning.

Vill du veta mer om bostaden?

Fyll i dina uppgifter nedan så kontaktar jag dig.
* obligatorisk uppgift
Äger du egen bostad? *
  • Bostadsinformation

    Upplåtelseform
    Bostadsrätt
    Adress
    Skånegatan 57A
    Postadress
    116 37 STOCKHOLM
    Område
    Södermalm
    Kommun
    Stockholm
    Lgh.nr
    16 (förening)
    Lgh.nr
    1002 (adressregister)
    Boarea
    56 m² (föreningens information)
    Antal rum
    2 rum och kök
    Månadsavgift
    2 707 kr/mån. I avgiften ingår vatten. Föreningen tillämpar IMD för all el och uppvärmning. 1 februari sänks avgiften med 20 procent till
  • Hall

    Ljus och inbjudande hall med beige väggar och ljust trägolv. Här finns praktisk förvaring i form av hatthylla och krokar samt en sittbänk med mjukt fårskinn. En rund matta och en mönstrad gångmatta skapar värme, medan växter och små tavlor ger rummet en personlig och hemtrevlig känsla.

    Vardagsrum

    Ljust och harmoniskt vardagsrum med beige väggar, högt i tak och vackra originaldetaljer. En vit kakelugn blir rummets naturliga blickfång och skapar karaktär. Stora fönster med ljusa gardiner släpper in rikligt med dagsljus. Rummet rymmer soffgrupp och sittplatser på mjuk matta, och har en varm, ombonad känsla med trägolv och stilrena möbler.

    Kök

    Ljust och trivsamt kök med vita skåpluckor, träbänkskiva och kaklat stänkskydd. Köket är utrustat med spis med ugn, fläkt, diskho med blandare samt fullstor kyl och frys. Gott om förvaring finns i över- och underskåp, varav flera med glasluckor.

    Vid fönstret finns en matplats för två personer. Köket har även arbetsbelysning, öppna avställningsytor och plats för mindre köksutrustning. Ett funktionellt och hemtrevligt kök med bra ljusinsläpp.

    Sovrum

    Generöst sovrum med lugn och harmonisk atmosfär. Rummet präglas av vackra snickerier, högt i tak och en ståtlig kakelugn som ger unik karaktär. Här finns gott om plats för dubbelsäng med tillhörande sängbord samt en mindre sittplats. De stora fönsterpartierna ger rummet en luftig känsla och bidrar till en behaglig rymd. Ett rofyllt rum med klassisk charm och varm helhet.

    Badrum

    Praktiskt badrum med helkaklade väggar i vitt och duschhörna med duschdraperi. Utrustat med WC, handfat med spegelskåp samt handdukstork. Här finns även förvaringshyllor i duschen och goda upphängningsmöjligheter. Ett funktionellt badrum med ljus och fräsch känsla.

  • Byggnadsinformation

    Byggnadstyp
    Flerfamiljshus
    Byggnadsår
    1904
    Uppvärmning
    El (direktverkande)
    Ventilation
    F,FT
    Uteplats
    Tidigare bygglov för balkong/utgång till innergård

    Energideklaration

    Status
    Utförd (2019-03-25)
    Primärenergital
    242 kWh/m2 och år
    Energiklass
    G
  • Föreningen

    Namn
    BRF Bonden Större 29
    Adress
    Skånegatan 57A
    Byggnadsår
    1904
    Byggnadstyp
    Flerfamiljshus
    Org.form
    Bostadsrätt
    Org.nummer
    769605-0959
    Föreningens ekonomi
    Lån per kvm enligt årsredovisning 2024: 15 936kr. Inga planer på avgiftsförändringar (kontrollerat 2026-02-28).
    Äkta/oäkta förening?
    Äkta
    TV/bredband
    Fiber är draget till alla lägenheter där boende själva tecknar och bekostar kabel-TV och bredband.
    Tillåts juridisk person?
    Nej
    Tillåts delat ägande?
    Ja, de godkänner delat ägande. Styrelsen tar ställning i varje enskilt fall.
    Föreningen äger marken?
    Ja
    Renoveringar
    Utförda renoveringar:
    1974 Omfattande renoveringar som bl.a. stambyte
    2015 Renovering av tvättstuga
    2015 Ny hiss i gatuhuset
    2017/18 Fönster- och portbyte
    2017/18 Installation av balkonger
    2017/18 Renovering av soprum
    2021 Stamspolning och kontroll av stammar
    2023 Rörarbete samt byte av stammar för restaurangen
    2024 Stamspolning i gårdshuset

    Kommande renoveringar:
    Renovering av fasaden på innergården inom 1-2 år (kontrollerat 2026-02-28).
    Parkering
    Föreningen tillhandahåller inga parkeringsplaster. Boendeparkering finns på omkringliggande gator.
    Gemensamma utrymmen
    Föreningen har en gemensam tvättstuga utrustad med en ny maskinpark som består av två tvättmaskiner, en torktumlare och ett torkskåp. Mellan husen finns en blomstrande innergård med utemöbler under sommartid för boende att nyttja. Här finns även cykelförvaring samt barnvagnsförråd.

    Det finns även 12 vindsförråd.
    Om föreningen
    Brf Bonden Större 29 är en äkta bostadsrättsförening belägen i Sofo på Södermalm. Föreningen registrerades 1999 och förvärvade fastigheten under 2015. I föreningen finns det 22 bostadsrättslägenheter. Det finns 1 lokal upplåten med hyresrätt, nyttjas som restaurang (Koh Phanang) vilket är av stort värde för föreningen.

    Fastigheten uppfördes 1904 och där marken innehas med äganderätt.

    Juridisk person godkännes ej. Delat ägande godkänns.

    Överlåtelseavgift: 2,5%
    Pantsättningsavgift: 1%
  • Ekonomi

    Månadsavgift
    2 707 kr/mån. I avgiften ingår vatten. Föreningen tillämpar IMD för all el och uppvärmning. 1 februari sänks avgiften med 20 procent till
    Andel i föreningen
    4.0791%
    Andel av årsavgift
    4.05275%
    Pantsatt
    Ej angivet

    Driftskostnader per år

    Hushållsel
    4 000 kr
    Försäkring
    2 400 kr
    Summa
    6 400 kr
    Driftkostnaderna är baserade på schablon och kan komma att variera efter egen förbrukning. I angiven driftkostnad ingår kostnad för el 4000 kr/år samt kostnad för hemförsäkring 2400 kr/år.
  • Fastighetsmäklaren

    Din fastighetsmäklare är med genom hela affären och ska tillvarata både köparens och säljarens intressen samt ge råd till både spekulanter och säljare (men samtidigt särskilt beakta säljarens ekonomiska intressen). Så tveka inte att ställa dina frågor.

    Objektsbeskrivning

    Mäklaren upprättar en objektsbeskrivning som beskriver bostadsrätten. Uppgifterna kommer från säljaren, föreningen och myndighetsregister, och kontrolleras normalt sett inte av mäklaren.

    Uppgiften om boarean kan av olika skäl avvika från den verkliga boarean, beroende på att standarden för hur man mäter bo- och biarea har varierat över tid. Därför uppmanas den köpare som anser att den exakta arean är av väsentlig betydelse att göra en uppmätning innan köpet.

    Intresserad av detta objekt?

    Är du intresserad av att gå vidare - meddela mäklaren ditt intresse så riskerar du inte att missa vid ett snabbt avslut. Försök att vara förberedd med lånelöfte från bank och ev. värdering av din nuvarande bostad.

    Utgångspunkt för ansvarsfördelningen vid överlåtelse av bostadsrätt

    Bostadsrätten ska efter köpet stämma överens med vad som avtalats mellan köpare och säljare samt vad köparen har fog att förvänta sig; sett i ljuset av bostadsrättens ålder, pris, skick och användning. Reglerna om fel i bostadsrätt finns i köplagen (eftersom en bostadsrätt är lös egendom) men vid prövning av fel och felansvar hämtas ofta inspiration från reglerna i jordabalken. En del av reglerna har också bildats genom praxis, efter att tvister om fel och felansvar har prövats av domstol.

    Köparens undersökningsplikt

    Köparens undersökning av bostadsrätten möjliggörs i regel genom att en visning av bostaden genomförs. Om köparen före sitt köp har genomfört en undersökning, får köparen inte i efterhand såsom fel åberopa vad som borde ha märkts vid undersökningen. Om köparen uppmärksammar något vid sin undersökning, och inte själv kan dra någon slutsats av detta, måste köparen gå vidare; t.ex. genom att anlita en sakkunnig, för att fullgöra sin undersökningsplikt. Annorlunda beskrivet kan köparen inte i efterhand åberopa något som ett fel, om det kan konstateras att omständigheten hade upptäckts om en sådan undersökning som varit påkallad hade genomförts.

    Köparen bör också tänka på att säljaren inte ansvarar för fel eller brister som köparen borde ha räknat med eller borde förväntat sig. Skulle t.ex. ett fel uppstå på någon av lägenhetens vitvaror kan det vara något köparen borde räkna med, med hänsyn till dess ålder och beräknade livslängd. Köparens skyldighet att undersöka omfattar inte enbart bostadsrätten utan även förhållanden kring bostadsrättsföreningen bör granskas, t.ex. om föreningen ska genomföra större renoveringar, höja sina avgifter eller liknande. En kontakt med företrädare för föreningen bör därför ingå i köparens undersökning, liksom genomgång av stadgarna och senaste årsredovisningen.

    Säljarens skyldigheter och betydelsen av att bostadsrätten överlåts i befintligt skick

    För att säljaren ska bli ansvarig för ett påstått fel, när bostadsrätten säljs i befintligt skick, krävs att omständigheten innebär att bostadsrätten är i väsentligt sämre skick än vad köparen med hänsyn till ålder, pris, användning och övriga omständigheter med fog kunnat förutsätta. Att bostadsrätten överlåts i befintligt skick kan alltså beskrivas som en form av ansvarsbegränsning för säljarens del.

    Emellertid åvilar det säljaren att upplysa om väsentliga förhållanden rörande bostadsrätten. Även om bostadsrätten sålts i befintligt skick, kan den alltså anses vara felaktig om säljaren före köpet har undanhållit omständigheter av betydelse för köparen. Om säljaren på detta sätt handlat i strid mot tro och heder, kan säljaren inte invända att köparen brustit i sin undersökningsplikt. Det ligger alltså i säljarens eget intresse att upplysa köparen om fel eller symptom på fel som säljaren känner till - eller misstänker. Det som säljaren redovisat kan i normalfallet inte senare åberopas av köparen som fel.

    Vidare ansvarar säljaren för utfästelser säljaren lämnar. Utfästelser kan också innebära att köparens skyldighet att undersöka ett visst förhållande minskas som följd av en sådan. Allmänt lovprisande eller generella uttalanden betraktas dock inte som utfästelser.

    Avtalsfrihet

    Denna information beskriver, kortfattat, den ansvarsfördelning som enligt lag gäller mellan köpare och säljare. Emellertid råder avtalsfrihet i frågan om ansvarsfördelningen vilket innebär att parterna kan avtala om en annan fördelning än den som beskrivits ovan. Som exempel kan nämnas när en säljare friskriver sig från ansvar genom en friskrivningsklausul, eller när en dolda fel-försäkring tecknas för objektet.

    Budgivning

    Om det finns flera intressenter kan det bli budgivning och då kan slutpriset bli ett annat än utgångspriset. Berätta innan budgivningen om dina önskemål om tillträdesdag, eventuella lånevillkor, försäljning av din nuvarande bostad etc. Det finns ingen lag som reglerar hur en budgivning ska gå till. Det är säljaren som bestämmer om, hur och till vem denne säljer. Mäklaren framför alla bud till säljaren och upprättar en förteckning över buden. Budgivningslistan lämnas även till köparen, med namn och kontaktuppgifter till budgivarna. Budgivare kan därför inte vara anonyma (men kan lägga bud via ombud).

    Fast och lös egendom

    I jordabalken finns bestämmelser och exempel på vad som är fast egendom och vad som är tillbehör till fastighet och byggnad och därmed ingår i den fasta egendomen. Allt annat som inte omfattas av reglerna om den fasta egendomen och tillbehören till denna är att betrakta som lös egendom. I samband med fastighetsöverlåtelser får köpare och säljare ofta anledning att fundera över dessa frågor. Om tveksamhet skulle uppstå får vi rekommendera att skriftlig överenskommelse träffas, som reglerar vad säljaren avser att ta med sig från fastigheten.

    Fastighetstillbehör

    Som fastighetstillbehör räknas föremål som av fastighetsägaren har tillförts fastigheten för stadigvarande bruk. Avsikten vid tidpunkten för anbringandet ska vara att föremålet ska förbli permanent på fastigheten.

    Exempel: Byggnad (inklusive lekstuga, växthus, uthus eller annan anläggning). Ledning för gas, el, vatten och avlopp. Stängsel. Flaggstång med lina. Buskar och träd. Brevlåda. Soptunna. Sandlåda. Oljetank. Friggebod. Bojstenar och boj. Torkvinda. Solur. Grindar. Flytbrygga.

    I det följande redovisar vi exempel på tillbehör, som kan räknas som fast egendom och således ingår i köpet. Om säljaren skulle vilja undanta vissa fasta tillbehör är detta möjligt, om parterna överenskommit detta i kontraktet. Viktigt är att notera härvid, att ett föremål inte är att betrakta som lös egendom förrän det faktiskt bortförts från fastigheten respektive byggnaden. 

    Den följande förteckningen är inte uttömmande, utan endast ett försök till att komplettera de exempel som redan finns i andra kapitlet jordabalken. Man bör också som säljare vara medveten om att utvecklingen går i den riktningen, att fler och fler föremål kommer att räknas som fastighetstillbehör. 

    Ett exempel härpå är TV-antennen. När tv var en ovanlig företeelse i svenska hem räknades antennen till lös egendom, medan den numera tveklöst får anses vara ett tillbehör till byggnaden. Parabolantenn är ett modernt exempel på gränsfall, där säljare och köpare bör avtala om den ska ingå.

    Byggnadstillbehör

    Som byggnadstillbehör räknas föremål som byggnaden blivit försedd med av fastighetsägaren och som är ägnade för stadigvarande bruk. Begreppet stadigvarande bruk anger att det ska finnas en ändamålsgemenskap eller funktionsgemenskap mellan föremålet och byggnaden. Bedömningen ska ske objektivt. Föremålet ska normalt sett vara till nytta oavsett vem som äger eller nyttjar fastigheten.

    Exempel: Garderober (inklusive inredningsdetaljer). TV-antenn. Parabolantenn. Heltäckningsmatta (om denna utgör ordinarie golvbeläggning). Spis. Kylskåp. Frys. Toalett- och badrumsinredning. Spisfläkt. Badkar. Badrumsskåp. Radiatorer. Centraldammsugare. Tvättmaskin. Torkskåp. Torktumlare. Mangel. Duschkabin. Fönsterbräden. Ledstång. Samtliga dörrnycklar. Markiser. Persienner. Tjuvlarm. Brandlarm. Stege för sotning. Fönsterluckor. Innanfönster. Gnistgaller. Hatthylla. Porttelefon. Braskamin.

    Gränsfall och undantag

    Exempel på gränsfall är fristående mikrovågsugn och dekoder till parabolantenn. Extrautrustning såsom kompletterande frysbox är exempel på undantag och utgör inte byggnadstillbehör. Där tveksamhet uppkommer rekommenderas att skriftlig överenskommelse träffas. Om säljaren skulle vilja undanta vissa fasta tillbehör är detta möjligt - om parterna överenskommer om detta i kontraktet.

    Bostadsrätter

    Bostadsrätter är lös egendom och regleras av köplagen. För att bedöma vad som ingår i köpet tillämpas i princip samma regler som för fastigheter. Det innebär att befintlig utrustning som finns uppräknad ovan ingår i köpet. Samma utgångspunkt gäller även vid beskattningen av bostadsrätt.

    Avtalsskrivning

    Fastighetsmäklaren upprättar köpehandlingarna och går igenom dessa med parterna. Muntliga avtal är inte bindande. Ett bindande köp föreligger först när ett skriftligt överlåtelseavtal har undertecknats och utväxlats. Därför brukar det ligga i alla parters intresse att skriva avtal så snart som möjligt. Kontrollera noga att alla avtalshandlingar stämmer överens med vad som sagts/överenskommits samt med det material du tidigare fått. Fråga fastighetsmäklaren om något är oklart.

    Handpenning

    Mäklaren ska verka för att köparen betalar en handpenning (i regel 10 %) som vanligtvis deponeras på ett särskilt klientmedelskonto. Detta sker då köpet är villkorat, t.ex. av att köparen beviljas medlemskap i föreningen. Resten av köpeskillingen betalas vid tillträdet.

    Tillträde

    På tillträdesdagen träffas parterna vanligtvis hos mäklaren, där slutbetalning hanteras. Mäklaren upprättar innan en likvidavräkning där det framgår för parterna och deras banker, vad som redan betalats och vad som återstår att betala. Mäklaren överlämnar även en journal över förmedlingen. Vid tillträdet får köparen dessutom nycklar m.m. Genom tillträdet är fastighetsmäklarens uppdrag avslutat och mäklarens skyldigheter gentemot både köpare och säljare upphör därmed.

    Personuppgifter

    Som visningskund och senare eventuellt som budgivare eller köpare, hanterar mäklarföretaget dina personuppgifter, enligt GDPR, för att kunna ge dig service och uppfylla lagkrav. För vidare information om hur dina personuppgifter behandlas kontakta din fastighetsmäklare.

    Information

    Ovanstående uppgifter är grundade på av säljaren och av berörd förening lämnad information. Köpare/spekulanter uppmanas att kontrollera dessa uppgifter med föreningen rörande lediga p-platser, kommande renoveringar och eventuella avgiftsförändringar. Köpare/spekulanter är medvetna om att bostaden köpes i befintligt skick och uppmanas att undersöka bostaden ordentligt.

    Köparen uppmanas att kontrollera bostadens bo- och biarea om denna är väsentlig för köparen.

    Om en personlig boendekostnadskalkyl önskas - vänligen kontakta ansvarig fastighetsmäklare.

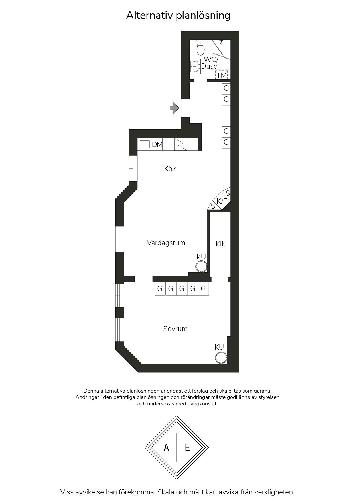
    Nedtagning av väggar och/eller väsentliga förändringar, ingrepp i bärande konstruktioner och ändring av ledningar för avlopp, värme, gas eller vatten av en lägenhet är alltid en fråga för föreningens styrelse att ta ställning till i varje enskilt fall. Detta gäller även om förändringen inte medför risker för byggnadens konstruktion.

    Jämförelsepriser

    Som en service till våra kunder visar vi slutpriser och information om Alicia Edelmans förmedlade bostäder på vår hemsida, i utskick och som statistik i media. Det kommer också att gälla för den här bostaden.

    Pris

    I Alicia Edelmans bostadsannonser i dagspress och på Internet anger vi prisnivån pris, vilket uppdragsgivaren har accepterat som ett tänkbart försäljningspris. Uppges accepterat pris innebär det att priset som anges i bostadsannonsen ligger på en nivå som säljaren är villig att acceptera som slutpris. Säljaren och mäklaren kommer gemensamt fram till nivån på det accepterade priset som även ligger inom ramen för mäklarens värdering av bostaden. Om flera bud finns kan dock budgivning förekomma och priset bli högre. Det råder enligt lag alltid fri prövningsrätt för säljaren vilket innebär att denne har rätt att själv välja om bostaden ska säljas, till vem och till vilket pris, även om accepterat pris har angetts. Alicia Edelman tillämpar budgivning enligt de krav som anges i Fastighetsmäklarlagen (2021:516) 3 kap. 18 §. Endast lagda bud som godkänns av säljaren anges på www.aliciaedelman.se samt andra aktuella hemsidor.

    Information om s k sidoverksamhet

    Enligt god fastighetsmäklarsed ska mäklare, som i anslutning till sin förmedlingsverksamhet, ägnar sig åt annan verksamhet, s k sidoverksamhet, redovisa detta skriftligen till säljare och köpare. Av informationen ska det framgå vad verksamheten avser och i de fall det är fråga om förmedling av en tjänst som annan utför ska det även framgå vem som är uppdragsgivare eller samarbetspartner. Av informationen ska det även framgå vilken ersättning som utgår, eller kan komma att utgå, och om ersättning lämnas till mäklaren direkt eller indirekt. Med hänvisning till ovanstående lämnas härmed följande information om sidoverksamhet.

    Uppdragsgivare: Flyttsmart AB
    Verksamhet: Flyttjänster
    Fast administrationsersättning: 25%
    Direkt/Indirekt: Indirekt

    Uppdragsgivare: Hemnet Service HNS AB
    Verksamhet: Annonsadministration
    Fast administrationsersättning: 600 kr
    Verksamhet: Tilläggsprodukter
    Rörlig ersättning: 10%-30%
    Direkt/Indirekt: Indirekt

Alicia Edelman

Inspireras av våra hem