Denna bostad är såld Visa alla bilder

Välplanerad fyrarummare med balkong och utgång till egen uteplats i attraktivt läge på Södermalm.

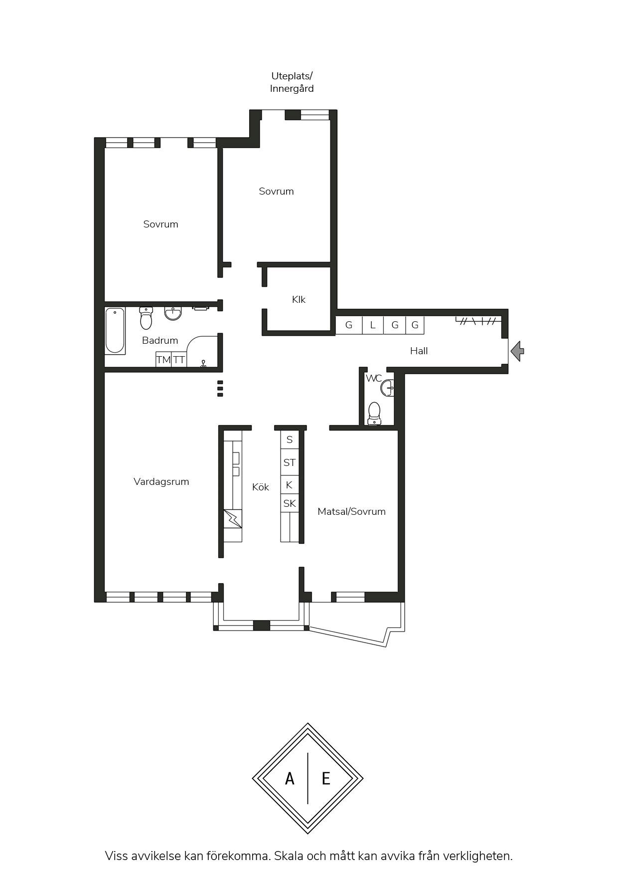
Välkommen till Tjustgatan 5 och denna rymliga, välplanerade fyrarummare med balkong, generösa sällskapsytor och privat uteplats, dessutom med direkt access till den lummiga innergården med flera matbord. Bostaden erbjuder ett stort vardagsrum, tre rymliga sovrum – varav ett med egen balkong – samt ett smakfullt renoverat kök med matplats intill fönster. Här finns badrum utrustat med tvättmaskin från Miele, separat gäst-WC samt goda förvaringsmöjligheter genom flera garderober och klädkammare.

Brf Mallen 9 är en stabil och äkta bostadsrättsförening med 95 lägenheter, varav fyra hyresrätter. Därefter återstår tre hyresrätter om ca 48 kvm samt en om ca 105 kvm. Föreningen äger marken och har starka intäkter från lokaler och hyresrätter om cirka 6,4 mkr per år, vilket ger en mycket god ekonomisk grund. Kassa uppgår till ca 4,4 mkr och belåningsgraden är låg, omkring 5 500 kr/kvm (ca 3 300 kr/kvm på totalytan). I föreningen finns 80 garageplatser, varav 40 laddplatser med kort kö, MC-parkering samt en trivsam innergård. Nyligen såldes en hyresrätt för 12 850 000 kr som bidrar positivt till föreningens ekonomi.

Här bor du i ett attraktivt läge på Södermalm med mycket goda kommunikationer. Endast några minuters promenad bort finns bussar med snabba förbindelser till city och övriga delar av Stockholm. Tunnelbanestationen Medborgarplatsen nås på cirka nio minuter till fots och erbjuder täta avgångar på gröna linjen. Pendeltågsstationen Stockholm Södra ligger också inom bekvämt promenadavstånd. I området finns ett brett utbud av restauranger, caféer, service och grönområden med närhet till både Mariatorget och Södermalms levande stadspuls.

Såld

Tjustgatan 5

11 850 000 kr (slutpris)
Antal rum
4 rum
Boarea
115 kvm
Område
Södermalm
Bostadstyp
Lägenhet
Våningsplan
Våning 1 Hiss finns.
Månadsavgift
3 745 kr/mån
Henrik Duong Ansvarig mäklare [email protected] 076-396 57 55
Nils Löfström Assisterande mäklare [email protected] 076-311 02 36
Alicia Edelman

Inspireras av våra hem